Parallel Architecture
Home Contact
The Collar Factory The Copse Autumn Yard Cornish Barn Palm Space Mile End Camberwell Riverside Garden Centre Cawsand Kingsdown Parade Beltran Road Knowlwater Cottage
Home Projects The Collar Factory The Copse Autumn Yard Cornish Barn Palm Space Mile End Camberwell Riverside Garden Centre Cawsand Kingsdown Parade Beltran Road Knowlwater Cottage Contact
Parallel Architecture
Architecture & Design
Riverside+Amenity+Block.jpeg
Riverside+Cafe.jpeg
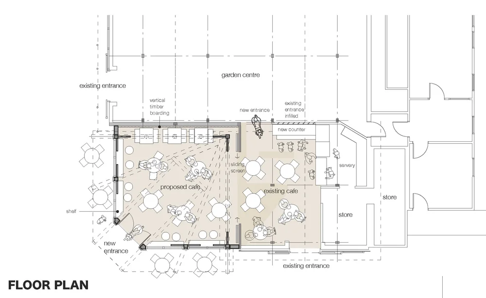
Riverside+Plan.jpeg
1478373764299.jpeg
Riverside+garden+Centre+Cafe.jpeg
Riverside+Garden+Centre+Amenity+Block.jpeg
1 2 3 4 5 6
Previous Next
Riverside+Amenity+Block.jpeg
Riverside+Cafe.jpeg
Riverside+Plan.jpeg
1478373764299.jpeg
Riverside+garden+Centre+Cafe.jpeg
Riverside+Garden+Centre+Amenity+Block.jpeg
 
+44 (0) 7538 103 160 james@parallelarchitecture.co.uk
Hours
Mon 9am to 5pm
Tue 9am to 5pm
Wed 9am to 5pm
Thu 9am to 5pm
Fri 9am to 5pm
Sat Closed
Sun Closed